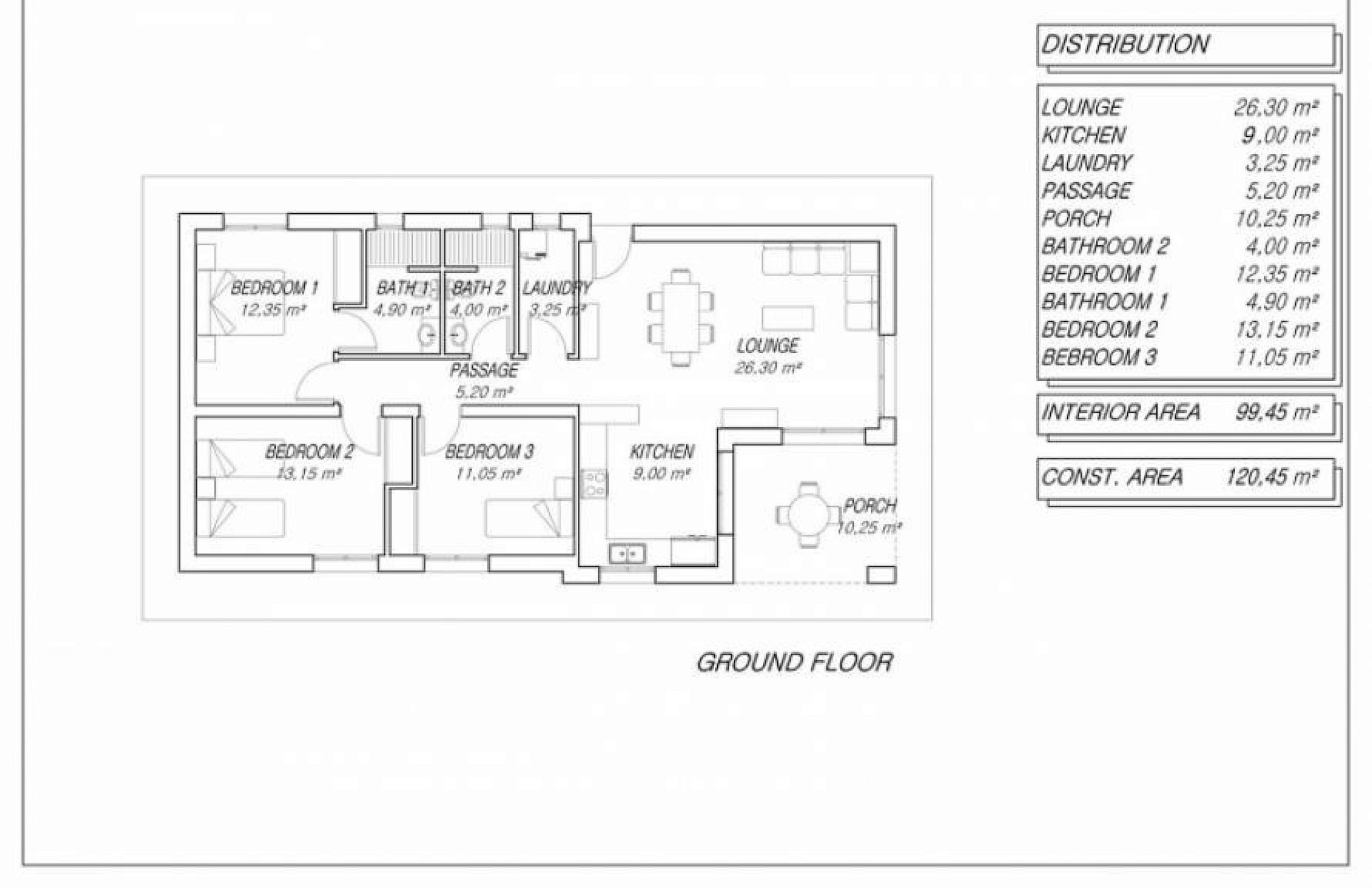
Detached Villa in Pinoso - New build - Pinoso €240,000

  • 3
  • 2
  • 120m²
  • 10000m²
  •  Private

1.- STRUCTURE, FAÇADE AND ENCLOSURES. Foundation footings will be laid in accordance with the recommendations of the corresponding technical projects. The structure will be of one-way reinforced concrete with joists and vaults or reticular. Solarium with ceramic floor tiles or non-trafficable flat roofs (depending on the model) will be of the inverted type with slopes for the correct evacuation of water, thermal insulation and waterproofing, with a gravel surface finish. The external enclosure will be made of autoclaved aerated concrete blocks (Ytong) or thermo-clay block rendered with water-repellent mortar in a chamber. The exterior cladding will be made with single-layer mortar. The interior lining will be of ceramic brick or laminated plasterboard on a structure of galvanised steel profiles, with thermal insulation. The technical characteristics of the materials used and their correct installation on site provide the building with thermal and acoustic insulation that has an impact on the degree of comfort of the villa.

2.- COATINGS AND FINISHES. 2.1.- GENERAL FLOORING OF THE HOUSE There is a choice of top quality porcelain stoneware flooring in a wide variety of colours, up to 20€/m2. 2.2- PAINTS AND FINISHES The walls will be painted with top-quality smooth plastic paint in a choice of several neutral shades.

2.3- ROOFS The ceilings will be finished off with a continuous suspended false ceiling made of laminated plasterboard, except for the laundry room, where a suspended ceiling will be installed, made of smooth laminated plasterboard, for maintenance of installations. All horizontal surfaces shall be painted white.

2.4- INTERIOR DIVISIONS The interior distribution of the villa will be done with ceramic partition walls or laminated plasterboards. In wet rooms, the plasterboard panels shall be water-resistant.

3.- KITCHEN Kitchen according to project, completely furnished with high quality furniture, melamine finish in homogeneous colour with surface texture. There will be different OPTIONS of finishes to choose from. The flooring in the kitchen will be the same as the general flooring in the rest of the house. The general walls will be painted in smooth plastic paint in the same colour as the rest of the house. The worktop, in quartz agglomerate (Silestone range 1) or national granite with different COLOUR OPTIONS to choose from. The single-bowl stainless steel or resin sink with drainer shall be inset and the mixer tap with swivel spout. Electrical appliances including induction hob, oven, microwave oven, and decorative extractor hood, all top brands.

4.- BATHROOMS 4.1.- Coatings. The flooring will be the same as throughout the house and all walls will be tiled with ceramic tiles in different formats. There will be different finishing options to choose from, approximately 20€/m2. 4.2.- Equipment. The bathrooms and toilets rooms will have wall-hung toilets with concealed cisterns, made of white vitrified porcelain by Geberit or a similar brand, with a dual flush to save water, with a choice of several models. The shower tray shall be made of one piece of non-slip synthetic resin. Colour to be chosen. Shower column in chrome finish and shower head. Single lever basin mixer tap in chrome finish. 4.3- Furniture The bathrooms will have bathroom furniture with melamine finish in a homogeneous colour, with integrated washbasin. There will be different options of finishes to choose from. Mirror included.

5.- CARPENTRY. 5.1.- Exterior carpentry. Lacquered aluminium carpentry with thermal bridge break. All windows will be double-glazed for greater thermal and acoustic insulation, Climalit type or similar. A compact roller shutter box will be installed in a colour matching the carpentry, with thermal aluminium roller blinds, and the patio doors will be motorised. 5.2-Interior doors. The access door to the house will be reinforced with two steel plates and a security lock. Interior doors made of DMF, with a plain, white lacquered blind panel, chrome-plated fittings and steel handles.

6.- Outdoor Spaces An 80 cm wide pavement will be laid around the house, finished with ceramic paving. And there will be a tiled area of approximately. An area of approximately 1.000 m2 around the house will be covered with white gravel on rustic plots. Wall with decorative fence with electric motorized sliding gate to the front with pedestrian access and chain linked fence to the rest of the boundaries on urban plots. On rustic plots, there will be a perimeter chain link fence of 3.000 m2. Main access to the plot with concrete block wall 1.80m high and motorized lacquered steel sliding gate.) There will be a swimming pool, (size depending on project), with paved patio around the pool of approximately 50 m2, non-slip ceramic pavement, with several options to choose. The lining of the swimming pool will be of mosaic tiles (gresite) or ceramic tiles with filtration system.

7.- INSTALLATIONS 7.1- Plumbing and domestic hot water. The plumbing installation of the house will be carried out with multilayer piping and the drainage network with PVC piping, in accordance with current regulations, with general stopcocks and in wet rooms and appliance stopcocks. Water and drainage connections for washing machine and dishwasher. Photovoltaic panels will be installed on the roof for DHW production. Inside the house there will be a 100-litre electric water heater. All in accordance with the requirements of the technical building code and applicable regulations.

7.2.- Electrical installation and communications. Complete electrical installation in accordance with REBT, with independent circuits and LEGRAND or similar brand electrical mechanisms, with different finish options to choose from. Interior lighting by means of LED downlights.

7.3- Air conditioning installation. Pre-installation for Air-conditioning installation throughout the house, except in wet areas and laundry room, by fibreglass ducts.

We have plots in many locations of the Alicante region

Plots starting from 40.000 euros 

8x4 swimming pool included in the price

Specifications
  • Swimming pool Private
Areas
  • House area 120 m²
  • Plot area 10000 m²
Details
  • Barbecue
  • Airconditioning
  • Dressing room
  • Solarium
  • Terrace
  • Utility room
  • Basement
  • Garage
  • Sauna
  • Satellite dish
  • Central heating
  • Alarm system
  • Cess Pit / Septic Tank
  • Mains electric
  • Mains water
  • Guest house
  • Double Glazing
  • Electic Gates
  • Equestrian
  • Fast internet and Phone
  • Fenced Plot
  • Fireplace- Log Burner
  • Pellet Stove
  • Walking Distance to Town
Price
€240,000
Sales class
New build
Reference
RAFA2033
Energy certificate
Pending
Contact us regarding this property
*
*

{{ thanks }}

Similar properties

WhatsApp